Рассчитать проект
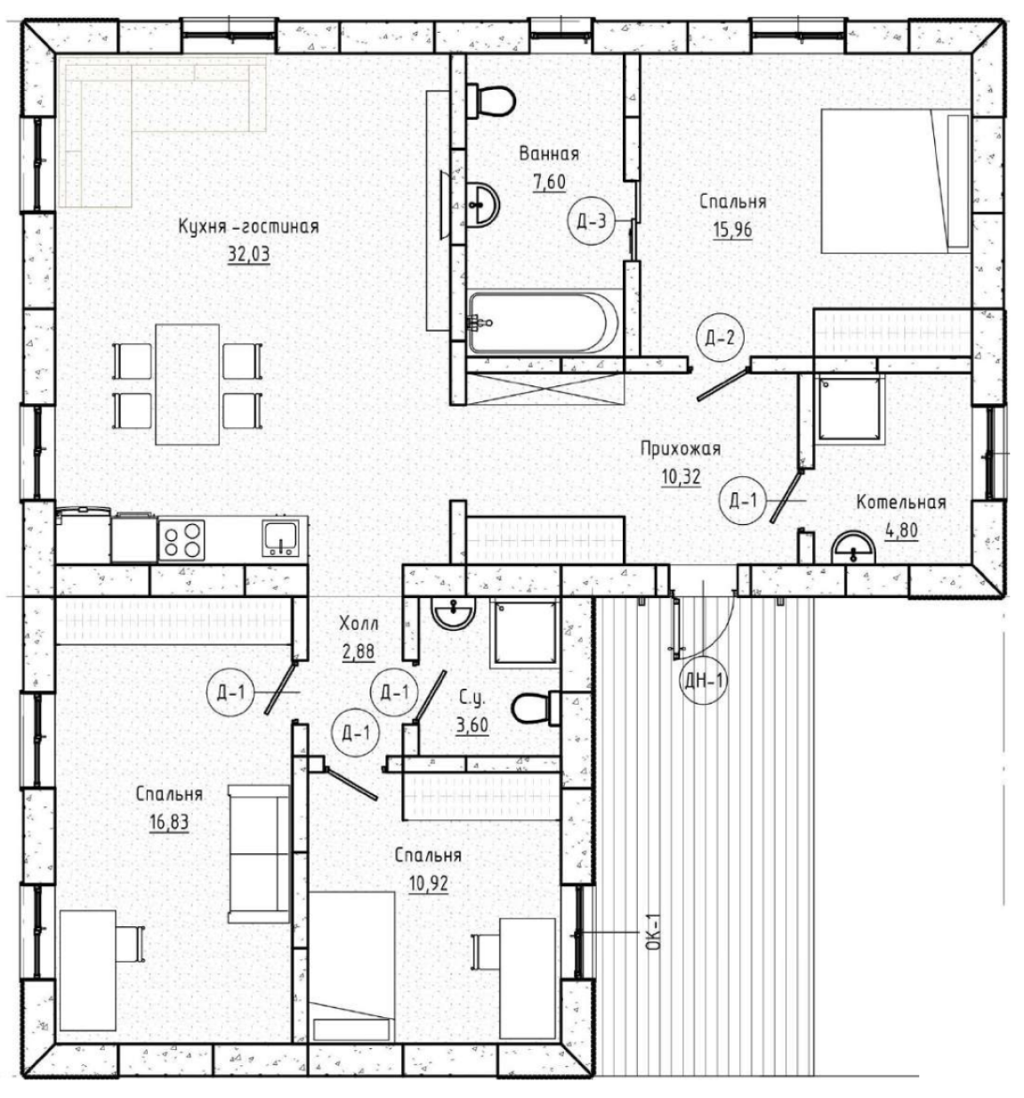
120 м²
от 8 350 000₽
Планировка
Вернуться к проектам